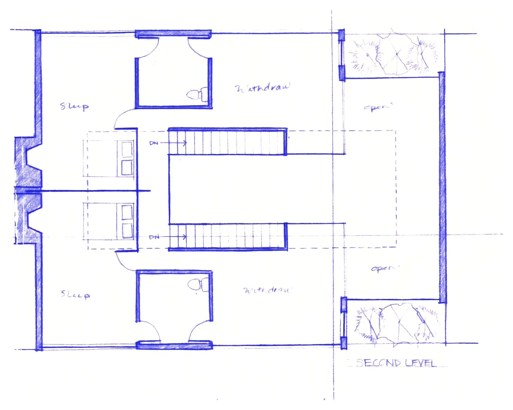
a pied-a-terre SPLIT HOUSE View fullsize View fullsize View fullsize View fullsize View fullsize View fullsize View fullsize View fullsize View fullsize View fullsize View fullsize View fullsize Residential, Unbuilt, RenderingsJessica WeissJuly 22, 2017 Facebook0 Twitter Tumblr Pinterest0 0 Likes